Gemeindezentrum Kappl
Gemeindezentrum Kappl
Gemeindezentrum Kappl Pläne
Gemeindezentrum Kappl RFEM-Berechnung
Neue Heimat Tirol Baumkirchen
Neue Heimat Tirol Zams
Sport- und Freizeitzentrum Galtür
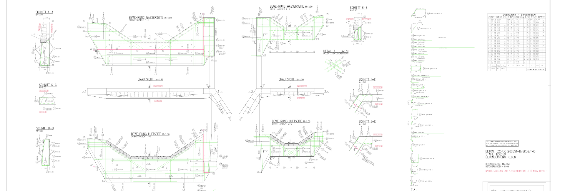
Brückensanierung HW Paznaun
Fußgängerbrücke Grins
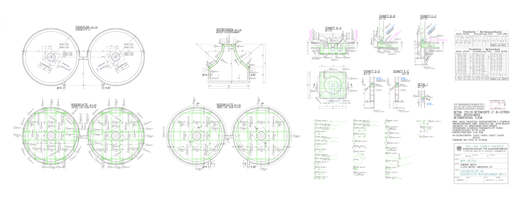
Hochbehälter Obsteig
Hochbehälter Obsteig
Brückensanierung Jerzens
Brückensanierung Jerzens
Auslaufbauwerk Mitterbach
Rechenbauwerk Pfundsertalbach
Sperrenbauwerk Mühlbach
Einreichplanung Tunnel St Anton
Einreichplanung Ortseinfahrt Bichlbach
Bauleitung WVA Kappl
Statik-Hochbau
Statik-Tiefbau
Einreichplanungen-Ausschreibung-Bauleitung